780-832-5880

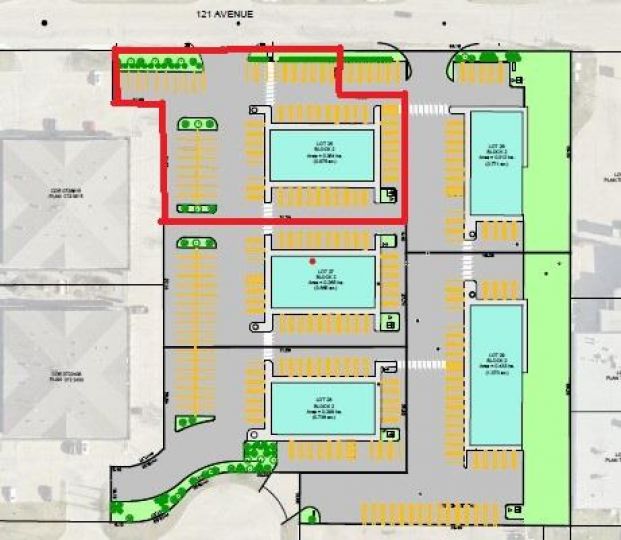
Lot 25, 10123 121 Avenue
Grande Prairie (A2030554)

$647,636
Loading Listing...

Loan Term
Interest Rate
Loan Amount
Annual Tax
Ann. Insurance

* Amounts are estimates only. Final payment amounts may vary.

Description

Lot 25 - Think you want your own commercial building? Don't want the hassle of buying the land, getting the services installed, prepping the base and paving? Northridge Business Center is for you!! Established business center. Five lots to choose from. All the paving is done. Services are in. And there is a 5,000 square foot building pad on each lot, ready for your building. Lot 25 is $647,636.95, plus services and roads $319,494.58, for a total of $967,131.53, plus GST. It doesn't get simpler than that!!!

Property details

Basic Info

MLS® #
A2030554
Property Type:
Land
Subtype:
Commercial Land
Subdivision:
Northridge
Price
$647,636
Sale/Lease:
For Sale

Building Info

Garage:
No
Basement:
No
Inclusions:
NA

Lot / Land Info

Lot Size:
0.87 acres
Zoning:
CA

Listing Info

Possession:
Negotiable
Days on Market:
705
Your Realtor
  • Cord Spero

    RE/MAX Grande Prairie
    780-832-5880

    Email

    Ask a question
    Share This Listing
    Related Properties