780-832-5880

10504 148 AVE
Rural Grande Prairie No. 1, County of (A2287928)

$729,900
3
2
1,874 ft²
Loading Listing...

Loan Term
Interest Rate
Loan Amount
Annual Tax
Ann. Insurance

* Amounts are estimates only. Final payment amounts may vary.

Description

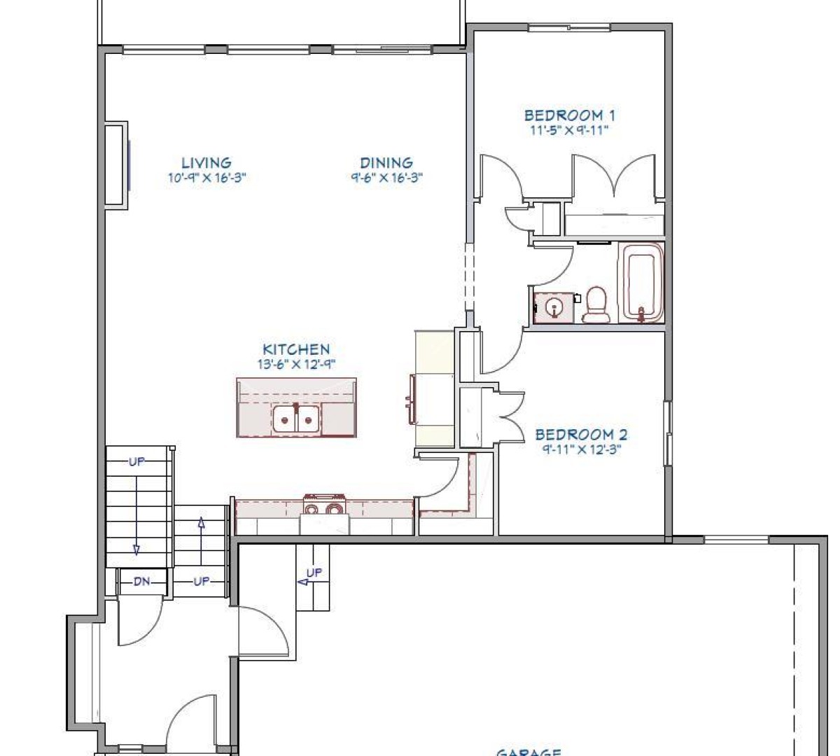
The Drew plan by Little Rock Builders is a highly sought after overly efficient floor plan! At foundation stage. Home could be complete in 3-6 months. The large entry leads you into a large open area including a dining, kitchen and living area designed to host, live and enjoy life. The main level also has 2 good sized rooms and a full bathroom. The upper level includes a laundry room, bonus room and a master bedroom worthy of a magazine complimented by a gorgeous en-suite and walk-in closet. The basement is unfinished but has potential for 2 bedrooms, full bathroom and living area. The home features a large garage measuring 36' wide 25' deep. A large driveway and much more. This home is not built yet.

Property details

Basic Info

MLS® #
A2287928
Property Type:
Residential
Subtype:
Detached
Subdivision:
Whispering Ridge
Price
$729,900
Sale/Lease:
For Sale
Size:
1,874 sq.ft.
Bedrooms:
3
Bathrooms:
2
Year Built:
2025 (1 years old)

Building Info

Builder:
Little Rock Builders Inc.
Structure Type:
House
Building Style:
Modified Bi-Level
Garage:
Yes
Parking:
Quad or More Attached
Fence:
Partial
Basement:
Full
Features:
See Remarks
Fireplaces:
1
Inclusions:
NA
Appliances:
See Remarks
Laundry:
Laundry Room, Upper Level
Exterior Features:
Other
Patio/Porch Features:
See Remarks

Neighborhood Info

Nearby Amenities:
Other

Acreage/Farm Info

Nearest Town:
Grande Prairie

Lot / Land Info

Lot Size:
0.17 acres
Lot Features:
See Remarks
Water:
Other
Sewer:
Other, Public Sewer
Zoning:
RR2

Materials & Systems

Roof:
Asphalt Shingle
Exterior:
See Remarks
Floors:
See Remarks
Foundation:
Poured Concrete
Heating:
High Efficiency, Forced Air
Cooling:
None
Amenities:
Other

Listing Info

Possession:
Negotiable
Your Realtor
  • Cord Spero

    RE/MAX Grande Prairie
    780-832-5880

    Email

    Ask a question
    Share This Listing
    Related Properties