780-832-5880

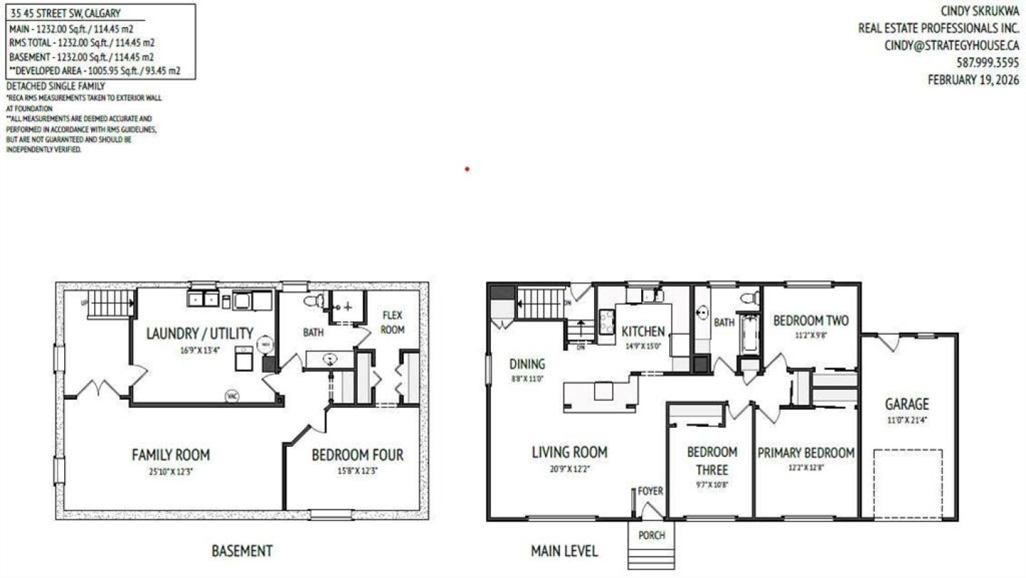
35 45 Street SW
Calgary (A2287636)

$915,000
4
2
1,232 ft²
Loading Listing...

Loan Term
Interest Rate
Loan Amount
Annual Tax
Ann. Insurance

* Amounts are estimates only. Final payment amounts may vary.

Description

OPEN HOUSE Saturday, February 21st, 1:00 – 3:00. This is the one you’ve been waiting for! A comfortable and beautifully maintained, 1230 SF bungalow in the best part of Wildwood! This owner-occupied home has been meticulously updated and cared for. The chef’s kitchen with a huge island open to the living room and dining room is the hub of the home. Three well-sized bedrooms on the main floor share a large, modern family bathroom. A large fourth bedroom and full second bathroom downstairs, along with a comfortable family room, fitness nook, and big utility/laundry room, offer plenty more living space. The exterior is clad in Hardie Board siding over R4.5 insulation. Generous, updated windows bring the sunshine in while the front yard boasts a new concrete patio and walkway surrounded by impressive landscaping. A single, oversized attached garage and large front drive offer plenty of parking space. The large backyard features a generous paving-stone patio and gas BBQ hookup – perfect for summer entertaining. There’s also plenty of additional backyard green space for the entire family to enjoy. Surrounded by nature, and less than two blocks from Wildwood Elementary, the community centre, hockey rink, sports courts, and community garden. With Edworthy Park, the Douglas Fir Trail, and the Edworthy off-leash park a short walk away, and downtown only a 10-minute commute, it’s no wonder Wildwood is such a coveted place to call home.

Property details

Basic Info

MLS® #
A2287636
Property Type:
Residential
Subtype:
Detached
Subdivision:
Wildwood
Price
$915,000
Sale/Lease:
For Sale
Size:
1,232 sq.ft.
Bedrooms:
4
Bathrooms:
2
Year Built:
1957 (69 years old)

Building Info

Structure Type:
House
Building Style:
Bungalow
Garage:
Yes
Parking:
Single Garage Attached
Fence:
Fenced
Basement:
Full
Features:
Central Vacuum, Closet Organizers, Kitchen Island, Open Floorplan, Quartz Counters, Recessed Lighting
Inclusions:
N/A
Appliances:
Built-In Oven, Built-In Range, Dishwasher, Dryer, Freezer, Garburator, Microwave, Range Hood, Refrigerator, Washer, Window Coverings
Laundry:
In Basement
Exterior Features:
Private Yard
Patio/Porch Features:
Deck, Patio

Neighborhood Info

Nearby Amenities:
Golf, Park, Playground, Pool, Schools Nearby, Shopping Nearby, Sidewalks, Street Lights, Tennis Court(s), Walking/Bike Paths

Lot / Land Info

Lot Size:
0.01 acres
Lot Features:
Back Lane, Back Yard, Front Yard, Gentle Sloping, Landscaped
Zoning:
R-CG

Materials & Systems

Roof:
Asphalt Shingle
Exterior:
Cement Fiber Board,Stucco
Floors:
Carpet, Hardwood, Tile
Foundation:
Poured Concrete
Heating:
Forced Air, Natural Gas
Cooling:
None
Amenities:
Golf, Park, Playground, Pool, Schools Nearby, Shopping Nearby, Sidewalks, Street Lights, Tennis Court(s), Walking/Bike Paths

Listing Info

Possession:
30 Days / Neg
Your Realtor
  • Cord Spero

    RE/MAX Grande Prairie
    780-832-5880

    Email

    Ask a question
    Share This Listing
    Related Properties