780-832-5880

2207 Victoria Crescent NW
Calgary (A2286853)

$1,849,900
5
4+1
2,670 ft²
Loading Listing...

Loan Term
Interest Rate
Loan Amount
Annual Tax
Ann. Insurance

* Amounts are estimates only. Final payment amounts may vary.

Description

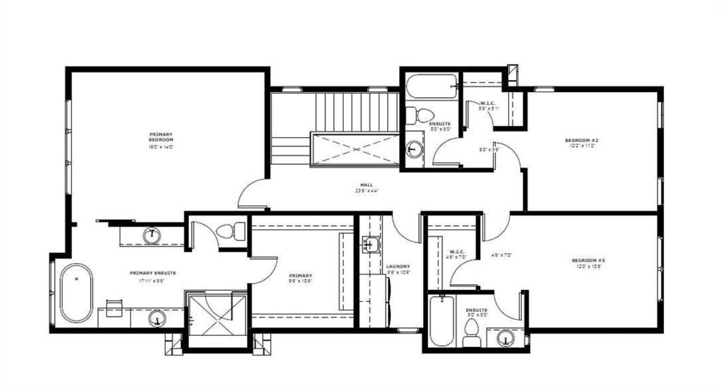
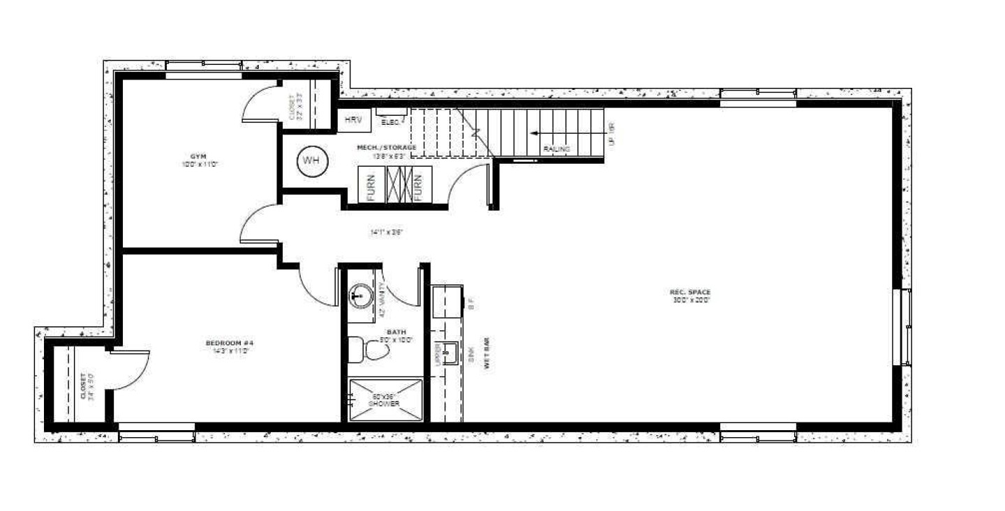
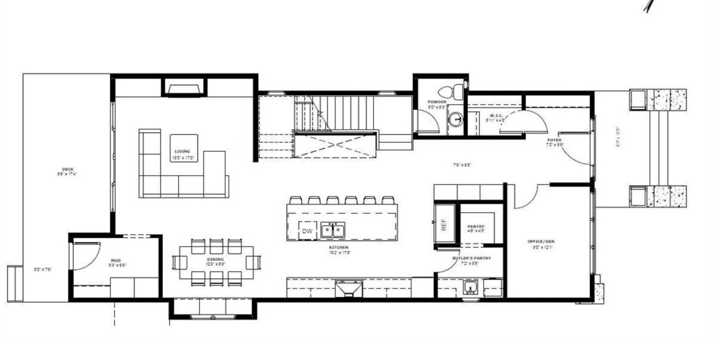
Welcome to the highly sought-after community of Banff Trail, where inner-city convenience meets modern luxury living. This brand-new residence showcases exceptional craftsmanship, thoughtful design, and elevated finishes just minutes from downtown Calgary, the University of Calgary, Foothills Hospital, LRT access, parks, and local amenities. Designed for both elegance and functionality, this home offers 5 bedrooms + 5 bathrooms and a spacious open-concept layout ideal for everyday living and entertaining. Engineered oak hardwood flooring spans all three levels, complemented by a sunny south-facing backyard that fills the home with natural light and sought after TRIPLE Garage. Upon entry, a bright front office with glass-paneled doors provides the perfect work-from-home space. The main floor unfolds into the heart of the home — a chef-inspired kitchen featuring custom cabinetry, dual paneled fridge/freezer units, a premium gas range, paneled dishwasher, a large waterfall island, and a fully outfitted custom walk-through butlers pantry. The adjoining living room invites gatherings around the striking gas fireplace while oversized windows overlook the landscaped yard and oversized deck Upstairs, the HUGE luxurious primary retreat impresses with vaulted ceilings bright sunny south exposure. The spa-like ensuite boasts a freestanding soaker tub, steam shower, dual vanities with extended counter space, and heated tile floors. Two additional spacious bedrooms each feature walk-in closets and private ensuites. A well-designed laundry room with hanging racks and ample storage completes the upper level. The fully developed lower level is built for lifestyle flexibility, offering a large recreation room, games area, storage, and a wet bar with double beverage/wine chillers — perfect for entertaining. Two additional bedrooms (or gym/office options) and a full bathroom provide excellent accommodation for guests or growing families. All tiled areas throughout the home are heated for year-round comfort. Outside, enjoy a sunny south-facing backyard and a rare TRIPLE detached garage, offering abundant space for vehicles, storage, and hobbies. An exceptional opportunity to own a beautifully crafted home in one of NW Calgary’s most desirable inner-city neighborhoods — Book your private showing today!

Property details

Basic Info

MLS® #
A2286853
Property Type:
Residential
Subtype:
Detached
Subdivision:
Banff Trail
Price
$1,849,900
Sale/Lease:
For Sale
Size:
2,670 sq.ft.
Bedrooms:
5
Bathrooms:
4 full / 1 half
Year Built:
2026 (0 years old)

Building Info

New Construction:
Yes
Structure Type:
House
Building Style:
2 Storey
Garage:
Yes
Parking:
Triple Garage Detached
Fence:
Fenced
Basement:
Full
Features:
Bar, Bookcases, Central Vacuum, Closet Organizers, Double Vanity, Kitchen Island, No Animal Home, No Smoking Home, Open Floorplan, Pantry, Quartz Counters, Recessed Lighting, See Remarks, Soaking Tub, Steam Room, Wired for Sound
Fireplaces:
1
Inclusions:
N/A
Appliances:
Bar Fridge, Built-In Refrigerator, Dishwasher, Garage Control(s), Gas Oven, Gas Range, Microwave, Range Hood, See Remarks, Washer/Dryer, Wine Refrigerator
Laundry:
Upper Level
Exterior Features:
BBQ gas line, Other, Private Yard
Patio/Porch Features:
Deck, Front Porch

Neighborhood Info

Nearby Amenities:
Park, Playground, Schools Nearby, Shopping Nearby, Sidewalks, Street Lights, Walking/Bike Paths

Lot / Land Info

Lot Size:
0.10 acres
Lot Features:
Landscaped, Lawn, Pie Shaped Lot
Zoning:
R-CG

Materials & Systems

Roof:
Asphalt Shingle
Exterior:
Cement Fiber Board,Concrete,See Remarks,Wood Frame
Floors:
Carpet, Hardwood, See Remarks
Foundation:
Poured Concrete
Heating:
Forced Air
Cooling:
Other
Amenities:
Park, Playground, Schools Nearby, Shopping Nearby, Sidewalks, Street Lights, Walking/Bike Paths

Listing Info

Possession:
90 Days / Neg
Your Realtor
  • Cord Spero

    RE/MAX Grande Prairie
    780-832-5880

    Email

    Ask a question
    Share This Listing
    Related Properties