780-832-5880

7 Sunset Crescent
Okotoks (A2286175)

$750,000
4
3
1,624 ft²
Loading Listing...

Loan Term
Interest Rate
Loan Amount
Annual Tax
Ann. Insurance

* Amounts are estimates only. Final payment amounts may vary.

Description

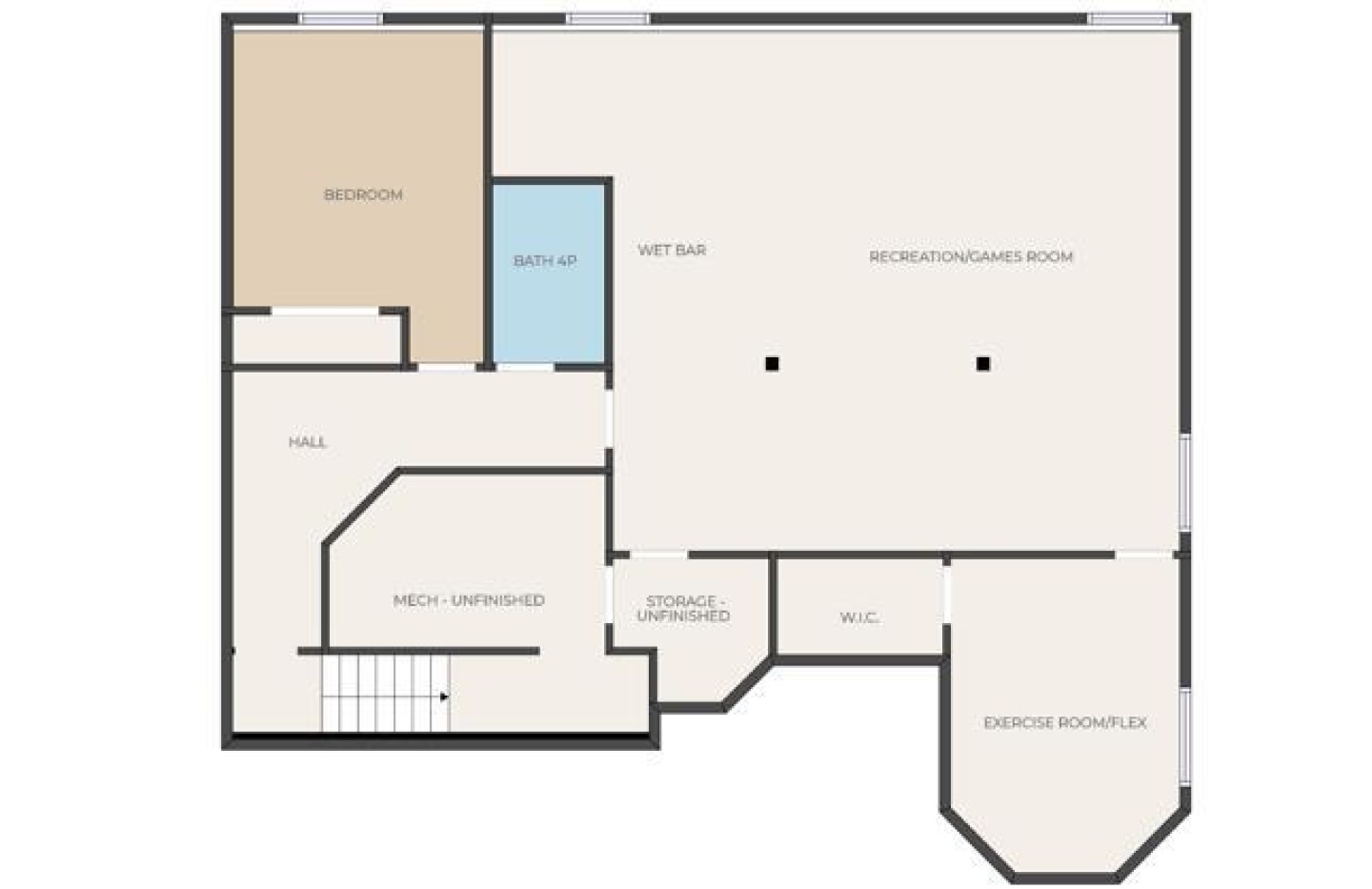
Large renovated bungalow in Suntree! So much space and over $135 000 of renovations in the last 2 years! The previous owners replaced shingles in 2017 and windows in 2021 and the current owners removed poly-b, replaced 2 furnaces, added AC, completely renovated the kitchen, added a huge ensuite and replaced all the flooring (LVP). Main floor features living/dining room with French doors that is currently used as a craft room but would make an awesome home office especially if you needed a lot of space! The renovated kitchen features dekton countertops, oversized upper cabinets and plenty of lower pot drawers. Gas stove, fridge with water dispenser, and OTR microwave are all less than 2 years old. Cozy family room has gas fireplace and opens up onto the south facing covered deck with sun shades. Lower deck has been extended if you want to soak up the sun! Primary bedroom now has a huge ensuite/walkin closet with large shower, double sinks and private WC. (Easy to convert this room back to a 3rd main floor bedroom). Second main floor bedroom is used as a home office. Main bathroom was also renovated. Downstairs in the sunshine basement, you will find 2 more bedrooms , 4 piece bathroom and rec room with kitchenette. Perfect for teens looking for their own space to hang out. Other improvements in the last 2 years include central vac, garage door, additional attic insulation, baseboard, casing, doors, lighting...the list goes on!

Property details

Basic Info

MLS® #
A2286175
Property Type:
Residential
Subtype:
Detached
Subdivision:
Suntree
Price
$750,000
Sale/Lease:
For Sale
Size:
1,624 sq.ft.
Bedrooms:
4
Bathrooms:
3
Year Built:
1991 (35 years old)

Building Info

Structure Type:
House
Building Style:
Bungalow
Garage:
Yes
Parking:
Double Garage Attached
Fence:
Fenced
Basement:
Full
Features:
Bar, Central Vacuum, Closet Organizers, No Smoking Home, Walk-In Closet(s)
Fireplaces:
1
Inclusions:
fridge in laundry room, ONE remote for garage door opener
Appliances:
Bar Fridge, Central Air Conditioner, Dishwasher, Dryer, Freezer, Gas Stove, Refrigerator, Washer, Window Coverings
Laundry:
Common Area, Laundry Room, Main Level
Exterior Features:
Private Yard
Patio/Porch Features:
Deck, Porch

Neighborhood Info

Nearby Amenities:
Park, Playground, Schools Nearby, Shopping Nearby, Sidewalks, Walking/Bike Paths

Lot / Land Info

Lot Size:
0.15 acres
Lot Features:
Landscaped, Level, Low Maintenance Landscape, Rectangular Lot
Zoning:
TN

Materials & Systems

Roof:
Asphalt Shingle
Exterior:
Brick,Vinyl Siding,Wood Frame
Floors:
Carpet, Hardwood, Vinyl Plank
Foundation:
Poured Concrete
Heating:
High Efficiency, Forced Air
Cooling:
Central Air
Amenities:
Park, Playground, Schools Nearby, Shopping Nearby, Sidewalks, Walking/Bike Paths

Listing Info

Possession:
30 Days / Neg,45 days / Neg
Days on Market:
10
Your Realtor
  • Cord Spero

    RE/MAX Grande Prairie
    780-832-5880

    Email

    Ask a question
    Share This Listing
    Related Properties