780-832-5880

651 84 Avenue SW
Calgary (A2285387)

$634,900
3
1+1
1,066 ft²
Loading Listing...

Loan Term
Interest Rate
Loan Amount
Annual Tax
Ann. Insurance

* Amounts are estimates only. Final payment amounts may vary.

Description

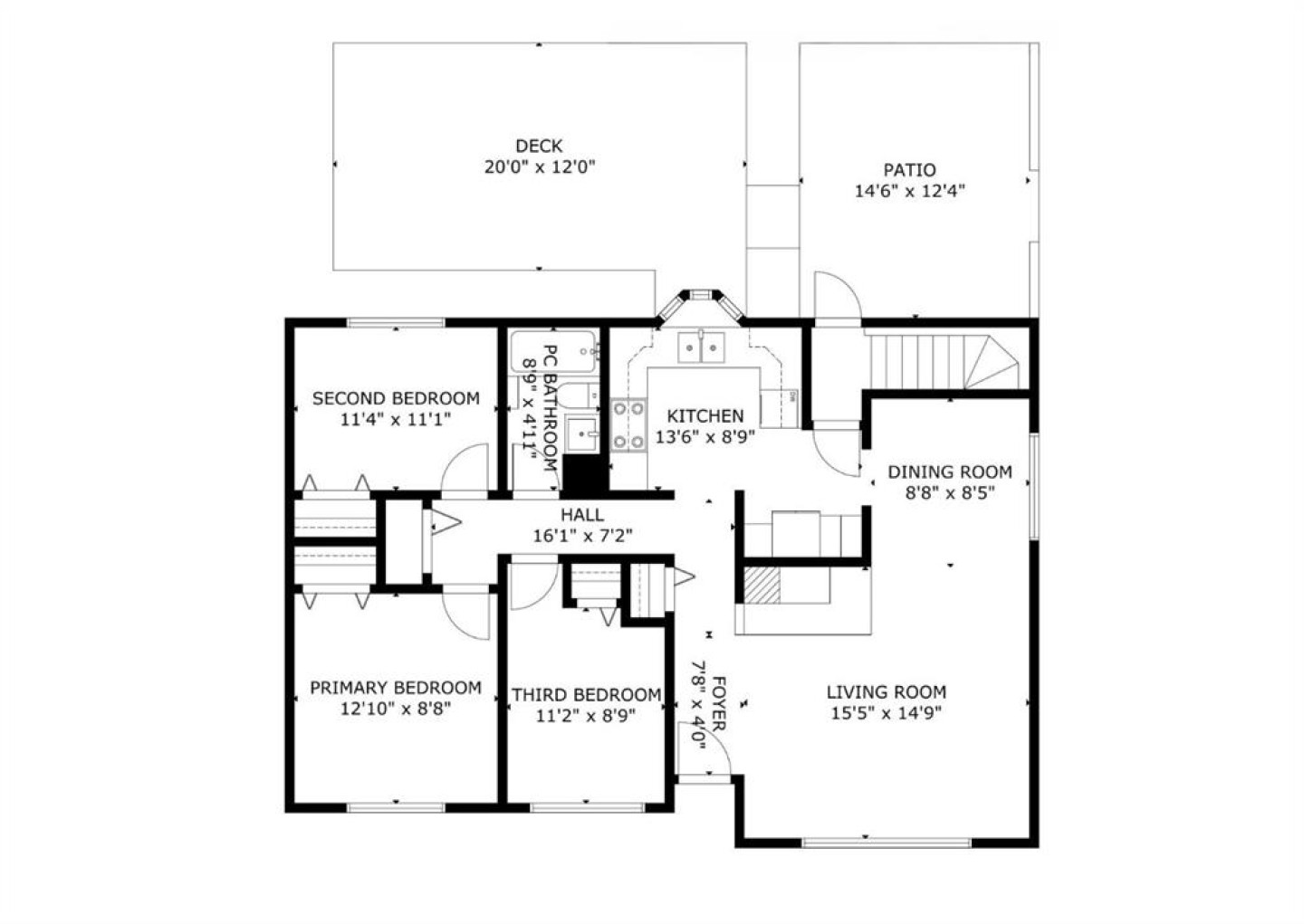
We are delighted to present this exceptional bungalow in the sought-after west-central community of Haysboro. Thoughtfully updated with both style and substance in mind, this home showcases tasteful modern improvements while ensuring the mechanical systems have been carefully maintained and upgraded. Recent enhancements include a high-efficiency furnace (2021), upgraded electrical panel (2023), vinyl windows, a new back door (2024), and even the gutters on the house were replaced 2 years ago with leaf filler protection for added convenience — all of this, allows you to move in with complete confidence and peace of mind. The beautifully redesigned kitchen feels nearly brand new, featuring updated cabinetry, quartz countertops, a striking backsplash, luxury vinyl plank flooring, and stainless steel appliances. The layout has been reimagined to maximize storage and functionality, while abundant natural light fills the space, creating a bright and welcoming atmosphere. Step downstairs to "Ye Olde Pub" which offers a distinctive and character-rich retreat— an ode to prohibition era designed speakeasy's or Public Houses. With newly replaced carpet, this level adds warmth and versatility for whatever use you choose to use it for. Outside, the expansive and private backyard is a rare find, offering endless possibilities for pets, gardening, hobbies, or outdoor entertaining. The oversized single garage includes a furnace (as-is) and an attached storage shed, ideal for use as a workshop, greenhouse, or additional storage—an exceptional luxury for the area. Immaculately maintained and clearly well cared for, this home must be seen to be fully appreciated. Book your private showing today and experience firsthand the quality, comfort, and pride of ownership this Haysboro bungalow offers.

Property details

Basic Info

MLS® #
A2285387
Property Type:
Residential
Subtype:
Detached
Subdivision:
Haysboro
Price
$634,900
Sale/Lease:
For Sale
Size:
1,066 sq.ft.
Bedrooms:
3
Bathrooms:
1 full / 1 half
Year Built:
1958 (68 years old)

Building Info

Structure Type:
House
Building Style:
Bungalow
Garage:
Yes
Parking:
Alley Access, Garage Faces Rear, Single Garage Detached
Fence:
Fenced
Basement:
Full
Features:
Bar, Closet Organizers, Stone Counters, Storage
Fireplaces:
2
Inclusions:
Gazebo
Appliances:
Dishwasher, Electric Cooktop, Electric Oven, Microwave, Refrigerator, Window Coverings
Laundry:
In Basement
Exterior Features:
Private Yard
Patio/Porch Features:
Front Porch, Patio

Neighborhood Info

Nearby Amenities:
Park, Playground, Schools Nearby, Shopping Nearby

Lot / Land Info

Lot Size:
0.11 acres
Lot Features:
Back Lane, Back Yard, Landscaped, Low Maintenance Landscape, Private, Rectangular Lot
Zoning:
R-CG

Materials & Systems

Roof:
Asphalt Shingle
Exterior:
Wood Frame
Floors:
Carpet, Vinyl Plank
Foundation:
Poured Concrete
Heating:
Forced Air
Cooling:
None
Amenities:
Park, Playground, Schools Nearby, Shopping Nearby

Listing Info

Possession:
Immediate,Negotiable
Your Realtor
  • Cord Spero

    RE/MAX Grande Prairie
    780-832-5880

    Email

    Ask a question
    Share This Listing
    Related Properties