780-832-5880

81 Albright Drive
Rural Rocky View County (A2283823)

$649,900
3
2+1
1,941 ft²
Loading Listing...

Loan Term
Interest Rate
Loan Amount
Annual Tax
Ann. Insurance

* Amounts are estimates only. Final payment amounts may vary.

Description

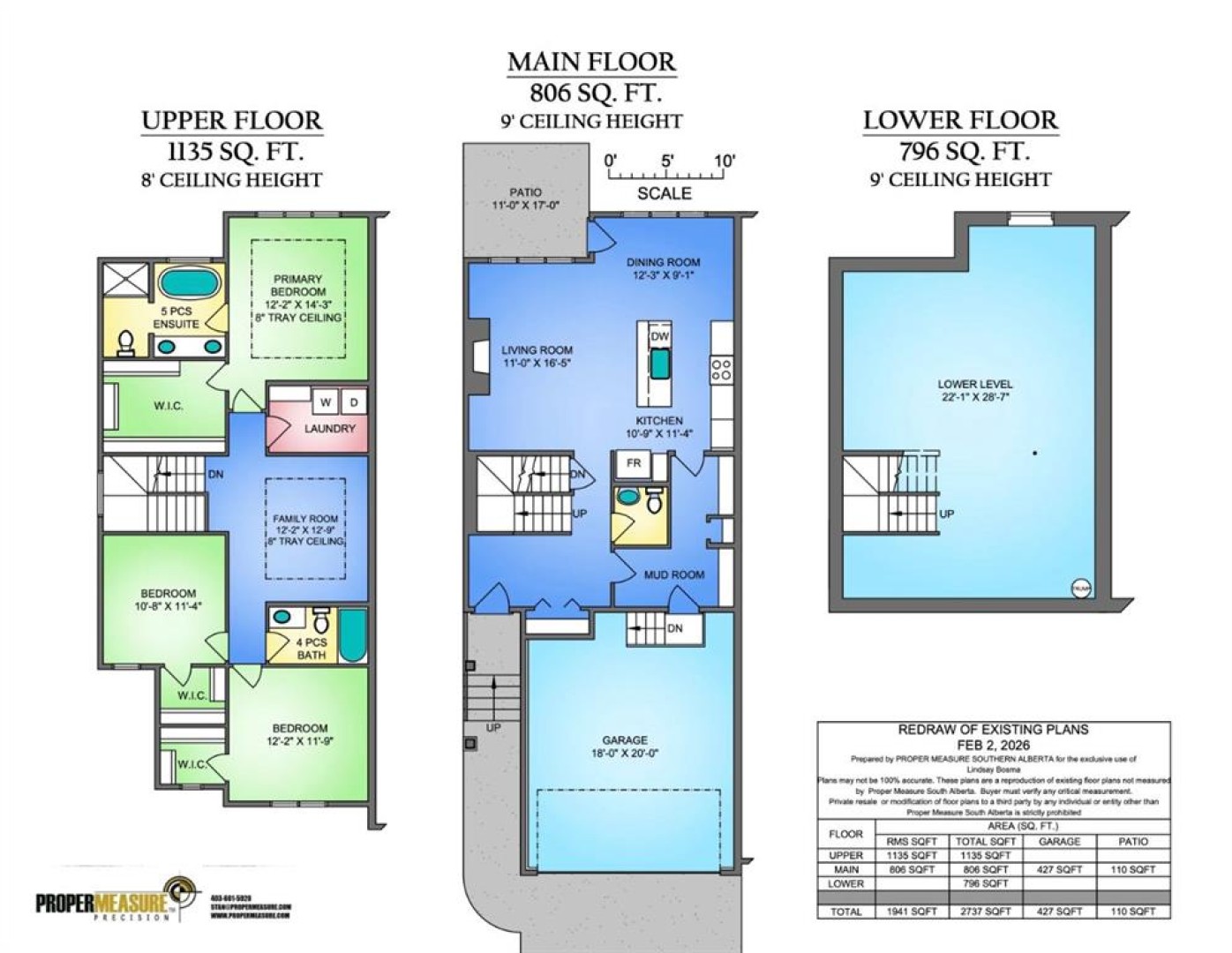
Welcome to 81 Albright Drive, presented by Genesis Builder Group, scheduled for completion in March 2026. Offering over 1900 sq ft of beautifully designed space with 3 bedrooms, 2.5 bathrooms, on a desirable lot backing onto a walking path. Stepping inside to 9’ ceilings, luxury vinyl plank flooring that spans the open concept main floor. The spacious kitchen is equipped with stainless steel appliances and a central island with an adjacent dining room, making it ideal for entertaining guests or enjoying family meals. The living room, with its inviting focal-point fireplace, is a space to unwind, and it seamlessly flows into your outdoor space, where a completed deck off the living area provides a perfect spot for outdoor relaxation. A convenient powder room completes the main level. Upstairs, a central bonus room offers separation from the primary suite and additional bedrooms. The primary bedroom boasts an ensuite bathroom with dual sinks, a soaker tub, a separate shower and a spacious walk-in closet, offering a private retreat. Two further bedrooms are generously sized, featuring their own walk-in closets and are complemented by a four-piece bathroom and an upstairs laundry for added convenience. The basement offers 9’ ceilings and is unspoiled, waiting for your design ideas. Located in the vibrant community of Harmony, residents enjoy a wealth of amenities and outdoor recreational opportunities. The community features scenic walking trails, parks, and access to various recreational facilities, fostering an active and connected lifestyle. With its excellent location, Harmony offers easy access to shopping, dining, and entertainment, making it an ideal place to settle down or invest in your future. Don’t miss the opportunity to own a brand new home in this thriving community. *RMS has been converted from the builder's blueprints, and taxes are to be assessed.

Property details

Basic Info

MLS® #
A2283823
Property Type:
Residential
Subtype:
Semi Detached (Half Duplex)
Subdivision:
Harmony
Price
$649,900
Sale/Lease:
For Sale
Size:
1,941 sq.ft.
Bedrooms:
3
Bathrooms:
2 full / 1 half
Year Built:
2026 (0 years old)

Building Info

New Construction:
Yes
Structure Type:
Duplex
Building Style:
2 Storey, Attached-Side by Side
Garage:
Yes
Parking:
Double Garage Attached
Fence:
Partial
Basement:
Full
Features:
High Ceilings, Kitchen Island, Open Floorplan, Stone Counters, Walk-In Closet(s)
Fireplaces:
1
Inclusions:
N/A
Appliances:
Dishwasher, Electric Stove, Microwave, Range Hood, Refrigerator
Laundry:
Upper Level
Exterior Features:
Other
Patio/Porch Features:
Patio

Neighborhood Info

Nearby Amenities:
Lake, Playground, Schools Nearby, Shopping Nearby, Walking/Bike Paths

Condo/Association Info

Condo Amenities:
Other
Condo Fee 2:
$1,560

Acreage/Farm Info

Nearest Town:
Calgary

Lot / Land Info

Lot Size:
0.07 acres
Lot Features:
Backs on to Park/Green Space, Other
Water:
Public
Sewer:
Public Sewer
Zoning:
VR-4

Materials & Systems

Roof:
Asphalt Shingle
Exterior:
Vinyl Siding,Wood Frame
Floors:
Carpet, Vinyl
Foundation:
Poured Concrete
Heating:
Forced Air
Cooling:
None
Amenities:
Lake, Playground, Schools Nearby, Shopping Nearby, Walking/Bike Paths

Listing Info

Possession:
Upon Completion
Your Realtor
  • Cord Spero

    RE/MAX Grande Prairie
    780-832-5880

    Email

    Ask a question
    Share This Listing
    Related Properties