* Amounts are estimates only. Final payment amounts may vary.
Description
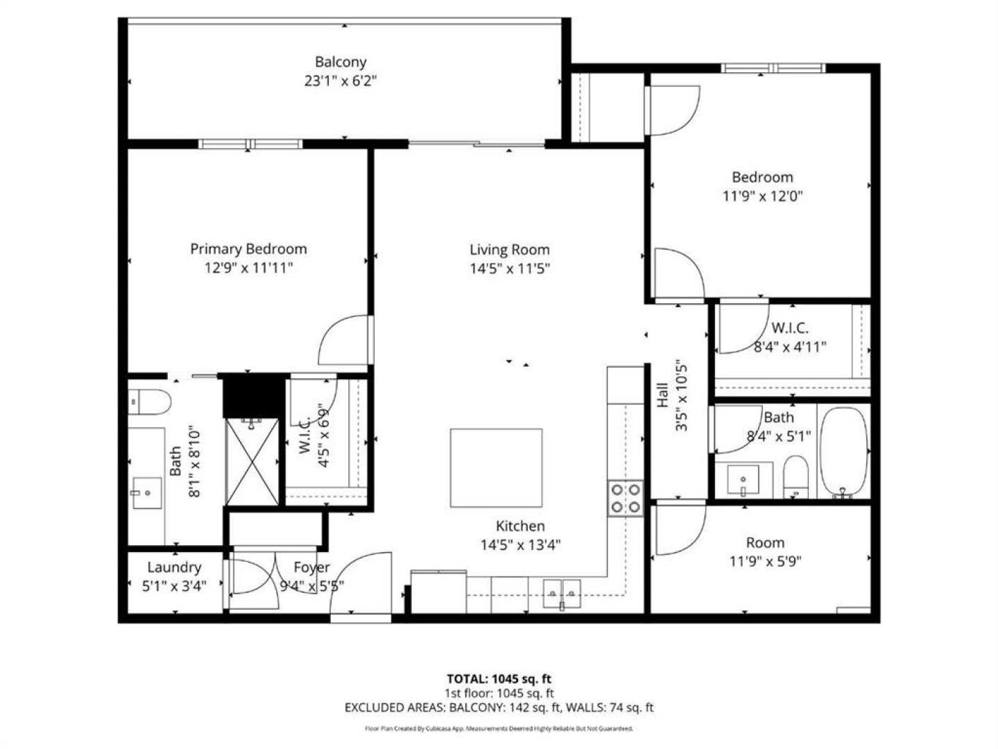
Designed for both comfort and style, this C1 floor plan delivers a well-balanced 2-bedroom, 2-bath plus den layout with an inviting open-concept design. Quartz countertops, luxury vinyl plank flooring, and modern recessed lighting create a clean, contemporary aesthetic, while west-facing windows flood the home with warm natural light. The primary retreat features a walk-in closet and private ensuite, and wall-mounted air conditioning ensures year-round comfort.
Life at The Monarch is elevated by an outstanding amenity offering, including a full-service fitness center, yoga studio, boardroom, residents’ lounge, entertaining space with deck and BBQ, two rooftop patios, guest suite, and a convenient dog wash station. Underground parkade parking provides secure and effortless access.
Located in the heart of Cooper’s Crossing, just steps from Coopers Promenade, this address places you close to schools, parks, and daily conveniences, with quick connections to 8th Avenue, 40th Avenue, and Highway 2 making the commute to Calgary seamless. A smart opportunity for those seeking low-maintenance, upscale condo living in one of Airdrie’s most established communities.
Property details
Basic Info
MLS® #
A2280749
Property Type:
Residential
Subtype:
Apartment
Subdivision:
Coopers Crossing
Price
$465,000
Sale/Lease:
For Sale
Size:
1,048 sq.ft.
Bedrooms:
2
Bathrooms:
2
Year Built:
2025 (1 years old)
Building Info
New Construction:
Yes
Structure Type:
Low Rise (2-4 stories)
Building Style:
Apartment-Single Level Unit
Garage:
No
Parking:
Parkade, Plug-In
Fence:
Basement:
No
Features:
Kitchen Island, Quartz Counters, Recessed Lighting, Vinyl Windows, Walk-In Closet(s)
Inclusions:
Key Fob
Appliances:
Dishwasher, Electric Range, Microwave, Range Hood, Refrigerator, Wall/Window Air Conditioner, Window Coverings
Laundry:
In Unit
Exterior Features:
None
Patio/Porch Features:
Balcony(s)
Neighborhood Info
Nearby Amenities:
Park, Playground, Schools Nearby, Shopping Nearby, Sidewalks, Street Lights, Walking/Bike Paths
Condo/Association Info
Condo Type:
Conventional Condo
Condo Amenities:
Bicycle Storage, Elevator(s), Fitness Center, Guest Suite, Parking, Party Room, Visitor Parking
Condo Fee:
$560
Condo Fee 2:
$57
Condo Fee Includes:
Common Area Maintenance, Gas, Heat, Insurance, Maintenance Grounds, Professional Management, Reserve Fund Contributions, Sewer, Snow Removal, Trash, Water
Pets Allowed:
Yes
Lot / Land Info
Zoning:
R3
Materials & Systems
Roof:
Membrane
Exterior:
Brick,Composite Siding,Wood Frame
Floors:
Carpet, Vinyl Plank
Foundation:
Poured Concrete
Heating:
Baseboard, Boiler
Cooling:
Wall Unit(s)
Amenities:
Park, Playground, Schools Nearby, Shopping Nearby, Sidewalks, Street Lights, Walking/Bike Paths