780-832-5880

118 49 Avenue W
Claresholm (A2279044)

$340,000
3,572 ft²
Loading Listing...

Loan Term
Interest Rate
Loan Amount
Annual Tax
Ann. Insurance

* Amounts are estimates only. Final payment amounts may vary.

Description

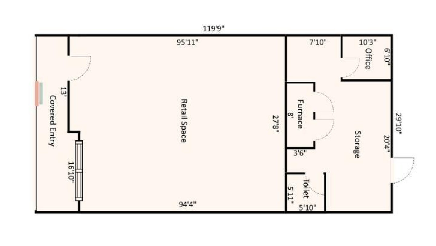
This great retail space has just come on the market in one of the most prime locations the Town of Claresholm has to offer. The C1 designation takes in a wide variety of designated and discretionary uses in a bustling energetic community that is actively welcoming new businesses to town. 49th Avenue is one of the most active business and retail streets in town with ample parking and only side street traffic just off Highway 2. This concrete block building was built in 1947 and has been extensively renovated, much of which has occurred within the last 10 years. Bring your dreams and ideas down to the town of Claresholm on Highway 2 just 1 hour south of Calgary and see if this opportunity is the one you have been looking for!

Property details

Basic Info

MLS® #
A2279044
Property Type:
Commercial
Subtype:
Retail
Subdivision:
NONE
Price
$340,000
Sale/Lease:
For Sale
Size:
3,572 sq.ft.
Year Built:
1947 (79 years old)

Building Info

Structure Type:
Retail
Building Name:
Dollar Store
Garage:
No
Fence:
Basement:
No
Inclusions:
Seasonal Garden Shed 20x19 Feet

Acreage/Farm Info

Nearest Town:
Claresholm

Lot / Land Info

Lot Size:
0.10 acres
Lot Features:
Back Lane
Zoning:
C1

Business Info

Business Type:
Retail

Materials & Systems

Roof:
Flat
Exterior:
Brick,Cement Fiber Board,Concrete,See Remarks,Stucco
Foundation:
Poured Concrete
Heating:
Forced Air, Natural Gas
Cooling:
Full

Listing Info

Possession:
45 days / Neg
Days on Market:
3
Your Realtor
  • Cord Spero

    RE/MAX Grande Prairie
    780-832-5880

    Email

    Ask a question
    Share This Listing
    Related Properties