780-832-5880

128 Heritage Heights
Cochrane (A2278283)

$599,000
3
2+1
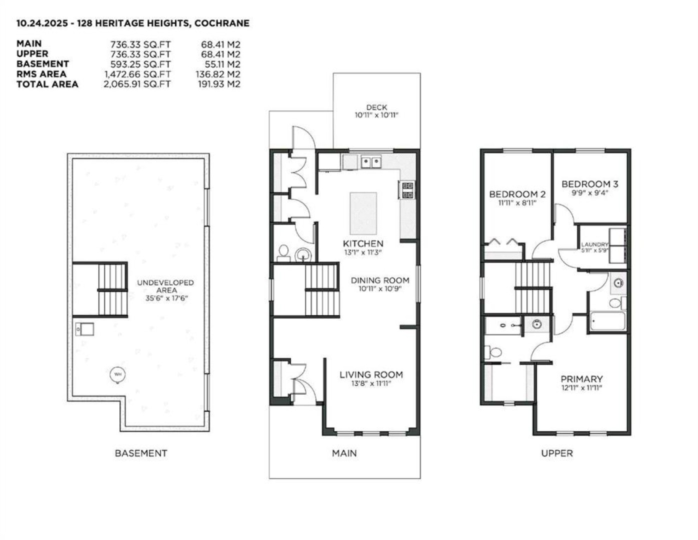
1,473 ft²
Loading Listing...

Loan Term
Interest Rate
Loan Amount
Annual Tax
Ann. Insurance

* Amounts are estimates only. Final payment amounts may vary.

Description

Welcome to this stunning 3 bedroom, 2.5 bathroom home in the desirable west Cochrane community of Heritage Hills. Combining modern comfort with timeless charm, this property offers the perfect balance of style, functionality, and location. From the inviting front porch to the thoughtfully designed interior, every detail has been carefully considered. The open concept main floor is filled with natural light, creating a warm and welcoming atmosphere. The spacious living room flows seamlessly into the dining area and modern kitchen complete with sleek stainless steel appliances including a gas range, ample cabinetry, and plenty of counter space — perfect for family meals or entertaining guests. Upstairs, you’ll find three generous bedrooms, including a primary suite featuring a walk-in closet and private ensuite bathroom. Two additional bedrooms, full laundry room and a full bath provide plenty of room for family or guests. The basement offers endless potential to customize the space to suit your needs — whether it’s a recreation room, home office, gym or additional living area. Outdoors, enjoy a low maintenance landscaped rear yard with a patio ideal for relaxing or hosting summer barbecues. The oversized detached double garage provides ample parking and storage space, and features a secondary overhead garage door offering convenient backyard access. Located just steps from a playground and minutes from amenities and scenic walking trails, with exceptional access to the majestic Rocky Mountains, this home perfectly blends convenience and community. Experience the best of Cochrane living in this exceptional Heritage Hills home.

Property details

Basic Info

MLS® #
A2278283
Property Type:
Residential
Subtype:
Detached
Subdivision:
Heritage Hills
Price
$599,000
Sale/Lease:
For Sale
Size:
1,473 sq.ft.
Bedrooms:
3
Bathrooms:
2 full / 1 half
Year Built:
2018 (8 years old)

Building Info

Structure Type:
House
Building Style:
2 Storey
Garage:
Yes
Parking:
220 Volt Wiring, Alley Access, Double Garage Detached, Insulated, Oversized
Fence:
Fenced
Basement:
Full
Features:
Closet Organizers, Kitchen Island, Quartz Counters, Recessed Lighting, Vinyl Windows, Walk-In Closet(s)
Inclusions:
Security system hardware, TV wall mounts
Appliances:
Built-In Gas Range, Dishwasher, Microwave, Range Hood, Refrigerator, Washer/Dryer, Window Coverings
Laundry:
Laundry Room, Upper Level
Exterior Features:
Other
Patio/Porch Features:
Front Porch, Patio

Neighborhood Info

Nearby Amenities:
Park, Playground, Shopping Nearby, Sidewalks, Street Lights, Walking/Bike Paths

Lot / Land Info

Lot Size:
0.07 acres
Lot Features:
Back Lane, Back Yard, Front Yard, Lawn, Low Maintenance Landscape
Zoning:
R-MX

Materials & Systems

Roof:
Asphalt Shingle
Exterior:
Vinyl Siding,Wood Frame
Floors:
Carpet, Tile, Vinyl Plank
Foundation:
Poured Concrete
Heating:
Forced Air
Cooling:
None
Amenities:
Park, Playground, Shopping Nearby, Sidewalks, Street Lights, Walking/Bike Paths

Listing Info

Possession:
Negotiable
Your Realtor
  • Cord Spero

    RE/MAX Grande Prairie
    780-832-5880

    Email

    Ask a question
    Share This Listing
    Related Properties