780-832-5880

220, 634 6 Avenue SW
Calgary (A2276567)

$1,390,000
1,680 ft²
Loading Listing...

Loan Term
Interest Rate
Loan Amount
Annual Tax
Ann. Insurance

* Amounts are estimates only. Final payment amounts may vary.

Description

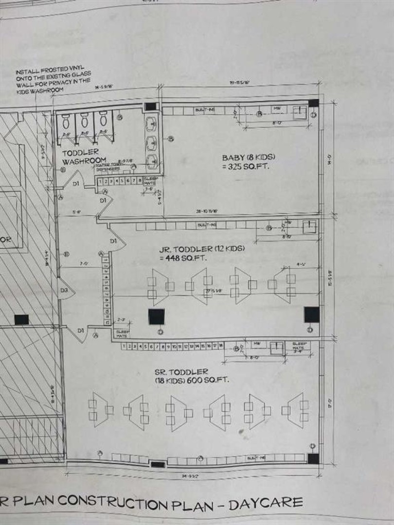
An exceptional opportunity to own a specialized commercial unit with real estate ownership in the heart of Downtown Calgary. It was originally designed as a daycare and has the Occupancy Permit acquired. This 1,680 sq. ft. purpose-built space features three well-designed rooms and dedicated bathrooms, along with brand-new, high-end interior renovations and customized construction, making it ideal for professional and institutional uses. The unit is fully equipped with completed fire suppression and mechanical systems, enabling immediate occupancy while minimizing future capital costs. With direct access to the +15 walkway system, the property offers outstanding accessibility and year-round convenience. Perfectly suited for medical clinics, educational facilities, or senior care services, this turnkey asset combines prime location, operational readiness, and long-term value in one of Calgary’s most desirable downtown corridors. Monthly condo fee: $1,678

Property details

Basic Info

MLS® #
A2276567
Property Type:
Commercial
Subtype:
Mixed Use
Subdivision:
Downtown Commercial Core
Price
$1,390,000
Sale/Lease:
For Sale
Size:
1,680 sq.ft.
Year Built:
2013 (13 years old)

Building Info

Structure Type:
Mixed Use
Garage:
No
Fence:
Basement:
No
Inclusions:
N/A

Condo/Association Info

Condo Type:
Conventional Condo
Condo Fee:
$1,687

Lot / Land Info

Zoning:
CR20-C20/R20

Business Info

Business Type:
Child Care

Materials & Systems

Roof:
Asphalt Shingle
Foundation:
Poured Concrete
Heating:
Forced Air, Natural Gas
Cooling:
Central Air

Listing Info

Possession:
30 Days / Neg
Days on Market:
6
Your Realtor
  • Cord Spero

    RE/MAX Grande Prairie
    780-832-5880

    Email

    Ask a question
    Share This Listing
    Related Properties