780-832-5880

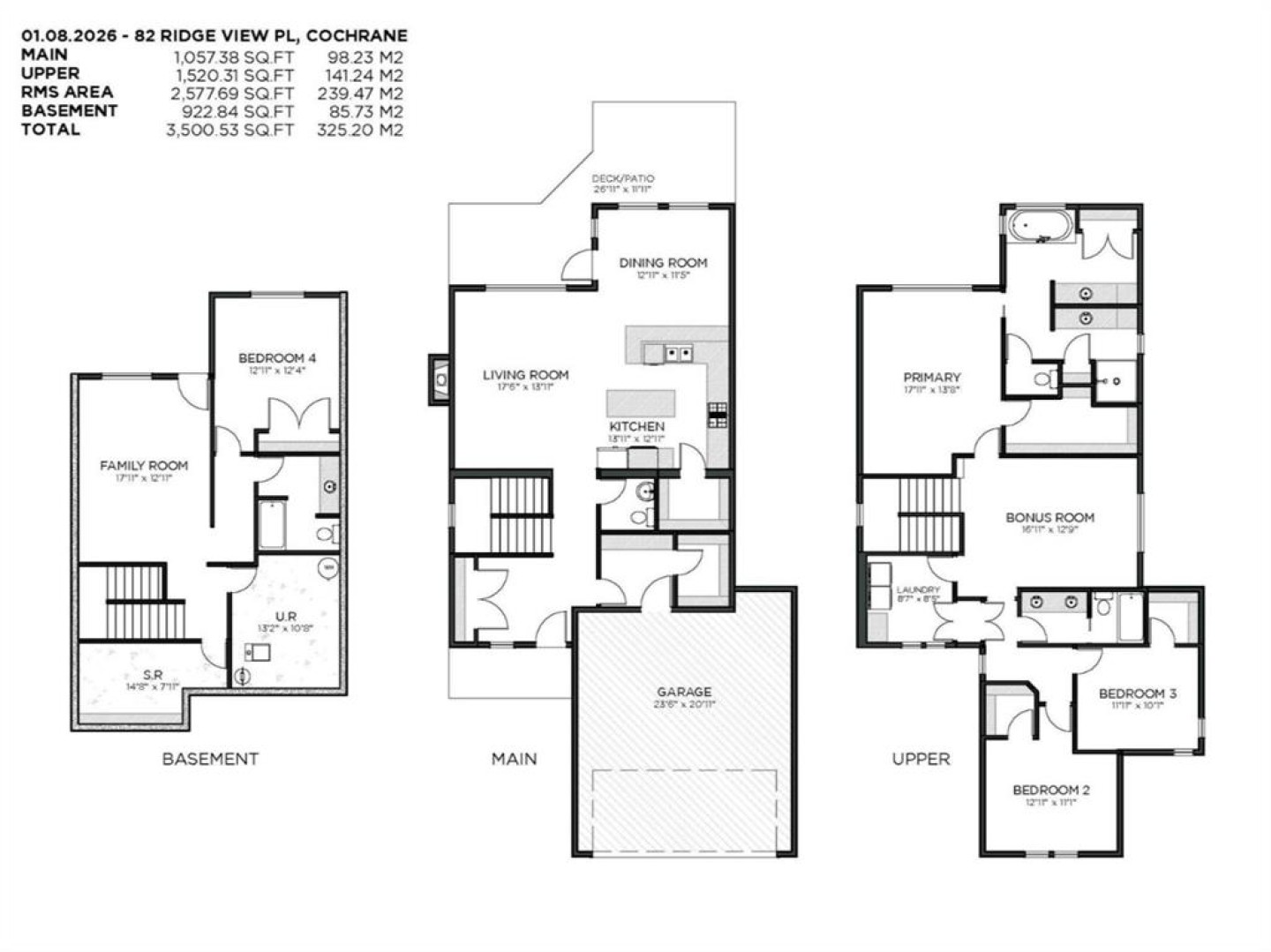
82 Ridge View Place
Cochrane (A2274936)

$1,025,000
4
3+1
2,578 ft²
Loading Listing...

Loan Term
Interest Rate
Loan Amount
Annual Tax
Ann. Insurance

* Amounts are estimates only. Final payment amounts may vary.

Description

Located near the very end of one of Cochrane’s most desirable streets, this exceptional 2012 built walkout home offers 2,571 sq. ft. above grade plus a fully finished walkout basement, backing directly onto a treed Environmental Reserve with NO NEIGHBOURS BEHIND. With direct access to the pathway system and miles of scenic walking paths leading toward the Bow River, this setting delivers privacy, nature, and lifestyle rarely found together. The home offers a welcoming sense of arrival with a covered front porch and an oversized garage featuring high ceilings, built-in cabinetry, and shelving. Inside, the open-concept main floor showcases 9’ ceilings, designer maple flooring, and a spacious living room anchored by a gas fireplace with mantle. The U-shaped kitchen is both elegant and functional, featuring granite countertops, a large island, Stainless Steel appliances, a gas cooktop, and a BBQ gas line, perfect for entertaining. A dedicated mudroom adds everyday convenience. Upstairs, a large bonus room with an electric fireplace separates the children’s wing from the primary retreat. The primary bedroom enjoys peaceful, treed views and features a luxurious ensuite with his & hers granite vanities, soaker tub, separate shower. The main bath offers double under-mount sinks, granite countertops. Secondary bedrooms are generous in size, one with corner windows and a walk-in closet. A tiled laundry room with cabinetry and a double-sided linen closet completes the upper level. The fully finished walkout basement features 9’ ceilings, a comfortable recreation/lounge area, a 4th bedroom, and a full bathroom, providing excellent flexibility for guests or growing families. Additional highlights include a dual-zone furnace, two air-conditioning units, central vacuum rough-in. Outdoor living is equally impressive with a large deck, incredible views, a walkout-level patio with brick walkway, landscaped yard, outdoor shed, and a high-end 2020 Hot Spring hot tub, perfectly positioned to enjoy the surrounding natural beauty year-round. This is a rare opportunity to own a walkout home with privacy, views, and direct access to nature in one of Cochrane’s most coveted locations.

Property details

Basic Info

MLS® #
A2274936
Property Type:
Residential
Subtype:
Detached
Subdivision:
River Song
Price
$1,025,000
Sale/Lease:
For Sale
Size:
2,578 sq.ft.
Bedrooms:
4
Bathrooms:
3 full / 1 half
Year Built:
2012 (14 years old)

Building Info

Structure Type:
House
Building Style:
2 Storey
Garage:
Yes
Parking:
Double Garage Attached, Oversized
Fence:
Fenced
Basement:
Full
Features:
Breakfast Bar, Granite Counters, High Ceilings, Kitchen Island, Open Floorplan, Pantry, Soaking Tub, Walk-In Closet(s)
Fireplaces:
1
Inclusions:
Hot Spring Hot Tub, Outdoor Shed, TV Wall Mount(s), Central Vacuum Rough-In, Garage Door Opener, Garage Control(s), Cabinet in Garage, Electric Fireplace in Bonus Room, 2 x Air Conditioners
Appliances:
Built-In Oven, Central Air Conditioner, Dishwasher, Garage Control(s), Gas Cooktop, Microwave, Range Hood, Refrigerator, Washer/Dryer, Window Coverings
Laundry:
Laundry Room, Upper Level
Exterior Features:
BBQ gas line
Patio/Porch Features:
Deck, Front Porch, Patio

Neighborhood Info

Nearby Amenities:
Park, Playground, Schools Nearby, Sidewalks, Street Lights, Walking/Bike Paths

Lot / Land Info

Lot Size:
0.12 acres
Lot Features:
Back Yard, Backs on to Park/Green Space, Cul-De-Sac, Environmental Reserve, Front Yard, Landscaped, No Neighbours Behind, Street Lighting, Treed, Views
Zoning:
R-LD

Materials & Systems

Roof:
Asphalt Shingle
Exterior:
Cement Fiber Board,Concrete,Wood Frame
Floors:
Carpet, Laminate, Tile
Foundation:
Poured Concrete
Heating:
Forced Air, Natural Gas
Cooling:
Central Air
Amenities:
Park, Playground, Schools Nearby, Sidewalks, Street Lights, Walking/Bike Paths

Listing Info

Possession:
Negotiable
Days on Market:
9
Your Realtor
  • Cord Spero

    RE/MAX Grande Prairie
    780-832-5880

    Email

    Ask a question
    Share This Listing
    Related Properties