780-832-5880

3690 36 Street N
Lethbridge (A2273346)

$17,500,000
103,788 ft²
Loading Listing...

Loan Term
Interest Rate
Loan Amount
Annual Tax
Ann. Insurance

* Amounts are estimates only. Final payment amounts may vary.

Description

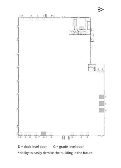
Presenting an exclusive opportunity for an investor to acquire a rarely available 103,788 sf freestanding industrial warehouse building on 6.84 acres, at the corner of 36 Street and 37 Avenue in the heart of the Sherring Industrial Park. The property’s current tenant WG Pro-Manufacturing Inc is a co-pack for one of Lethbridge’s major local food processors. As a large-format single-user of the Outpost Warehouse property, WG Pro-Manufacturing Inc. is a growth business. There are six years of the lease term remaining, with rent increases every two years. The Net Operating Income for the Outpost Warehouse is $1,080,000 (2025). There is the value-add opportunity to increase revenue by up to $75,600 per year through the newly packed gravel parking available on the east side of the building. The extra land has been allocated for up to 42 semi trailers at a rate of $150 per month per stall.

Property details

Basic Info

MLS® #
A2273346
Property Type:
Commercial
Subtype:
Industrial
Subdivision:
Sherring Industrial Park
Price
$17,500,000
Sale/Lease:
For Sale
Size:
103,788 sq.ft.
Year Built:
2018 (8 years old)

Building Info

Structure Type:
Warehouse
Building Name:
The Outpost
Garage:
No
Fence:
Basement:
No
Inclusions:
None

Lot / Land Info

Lot Size:
6.84 acres
Legal Land Desc:
16-9-21-W4
Zoning:
I-H

Listing Info

Possession:
Negotiable
Days on Market:
31
Media & Video
Your Realtor
  • Cord Spero

    RE/MAX Grande Prairie
    780-832-5880

    Email

    Ask a question
    Share This Listing
    Related Properties