780-832-5880

5006 52 Street
Castor (A2267094)

$189,900
2
1+1
1,094 ft²
Loading Listing...

Loan Term
Interest Rate
Loan Amount
Annual Tax
Ann. Insurance

* Amounts are estimates only. Final payment amounts may vary.

Description

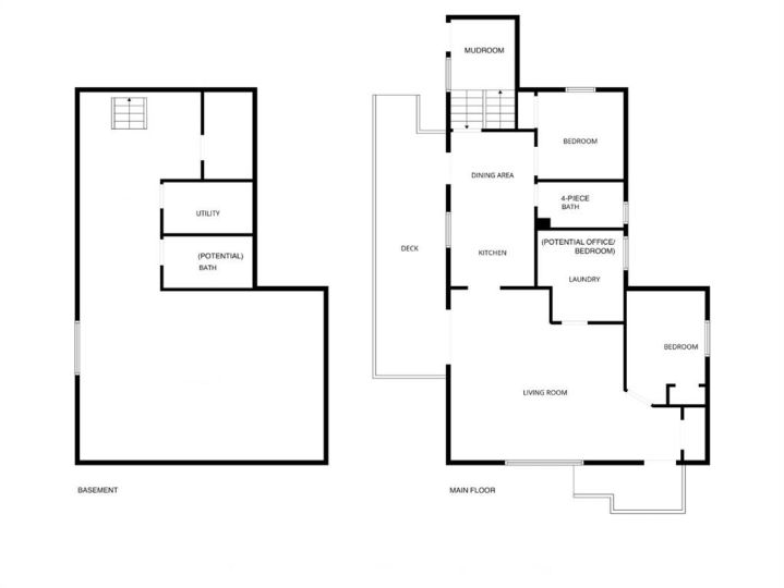
Situated on a generous 125’ x 115’ lot, this property offers excellent potential for those seeking comfortable small-town living with room to grow. Enjoy the convenience of main-floor living, complete with a laundry room on the same level which could easily be converted into a third bedroom if desired. The bright, eat-in kitchen provides access to a deck, perfect for morning coffee or quiet relaxation. A large living room also opens onto the same deck through sliding doors, making indoor-outdoor living a breeze. The main floor includes a 4-piece bathroom, while the basement features the start of a second bathroom (toilet already installed) and offers unfinished space ready for your finishing ideas. With the potential for a separate basement entry, this home could be configured for additional living options. A heated 2-car detached garage with a concrete floor provides excellent space for parking, storage, or hobbies with plenty of room for your tools and toys. Located within walking distance to the school and downtown Castor, this property blends practicality, space, and potential in one great package.

Property details

Basic Info

MLS® #
A2267094
Property Type:
Residential
Subtype:
Detached
Subdivision:
NONE
Price
$189,900
Sale/Lease:
For Sale
Size:
1,094 sq.ft.
Bedrooms:
2
Bathrooms:
1 full / 1 half
Year Built:
1957 (69 years old)

Building Info

Structure Type:
House
Building Style:
Bungalow
Garage:
Yes
Parking:
Additional Parking, Alley Access, Double Garage Detached, Driveway, Heated Garage
Basement:
Full
Features:
No Smoking Home
Inclusions:
Refrigerator, stove, washer, dryer.
Appliances:
Refrigerator, Stove(s), Washer/Dryer
Laundry:
Laundry Room, Main Level
Exterior Features:
Other
Patio/Porch Features:
Deck

Neighborhood Info

Nearby Amenities:
Airport/Runway, Golf, Lake, Park, Playground, Pool, Schools Nearby, Shopping Nearby, Sidewalks, Walking/Bike Paths

Lot / Land Info

Lot Size:
0.33 acres
Lot Features:
Back Lane, Open Lot
Zoning:
R1

Materials & Systems

Roof:
Asphalt Shingle
Exterior:
Vinyl Siding,Wood Siding
Floors:
Concrete, Laminate, Vinyl Plank
Foundation:
Poured Concrete
Heating:
Forced Air
Cooling:
None
Amenities:
Airport/Runway, Golf, Lake, Park, Playground, Pool, Schools Nearby, Shopping Nearby, Sidewalks, Walking/Bike Paths

Listing Info

Possession:
Immediate,Negotiable
Days on Market:
31
Media & Video

Experience this property!

Virtual Tour
Your Realtor
  • Cord Spero

    RE/MAX Grande Prairie
    780-832-5880

    Email

    Ask a question
    Share This Listing
    Related Properties