780-832-5880

104, 11240 104 Avenue
Grande Prairie (A2250443)

$215,000
2
2
834 ft²
Loading Listing...

Loan Term
Interest Rate
Loan Amount
Annual Tax
Ann. Insurance

* Amounts are estimates only. Final payment amounts may vary.

Description

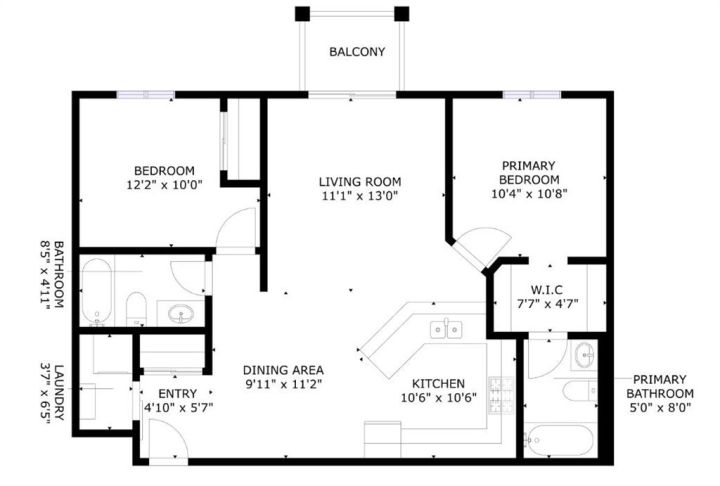
This beautifully updated and fully furnished 2 bed, 2 bath executive condo in the desirable Westgate area offers exceptional style, comfort, and unbeatable convenience with ALL utilities included in the condo fees (excluding internet/TV). This main floor unit is a rare opportunity for investors or buyers looking for move-in ready living. High-end renovations completed approx. 9 years ago include Italian tile flooring in the kitchen and living room, plush carpet in the bedrooms, upgraded trim and baseboards, cove crown moulding, wainscoting in the dining room, solid wood doors, and custom cabinetry. The kitchen is enhanced with a tiled backsplash, OTR microwave, and dishwasher, while both bathrooms also feature stylish tile finishes. A titled underground heated stall (#279) is included along with condo fees of $624.17, covering power, gas, water, sewer, garbage, snow removal, and structural insurance. Located steps from the new hospital, big box shopping, and amenities, this is the only condo currently available in the complex—don’t miss out! Maximum number of pets allowed is two and includes only birds, fish, cats, and dogs. • There is a size limit (15 kg) on allowed pets, a form must be filled out and approved by Condo management, see new owners package and bylaws. Photos from previous listing.

Property details

Basic Info

MLS® #
A2250443
Property Type:
Residential
Subtype:
Apartment
Subdivision:
Gateway
Price
$215,000
Sale/Lease:
For Sale
Size:
834 sq.ft.
Bedrooms:
2
Bathrooms:
2
Year Built:
2007 (18 years old)

Building Info

Structure Type:
Low Rise (2-4 stories)
Building Style:
Apartment-Single Level Unit
Garage:
Yes
Parking:
Driveway, Heated Garage, Underground
Basement:
No
Features:
No Smoking Home
Inclusions:
furniture and appliances
Appliances:
See Remarks
Laundry:
Main Level
Exterior Features:
None
Patio/Porch Features:
Deck

Neighborhood Info

Nearby Amenities:
None

Condo/Association Info

Condo Amenities:
Elevator(s), Fitness Center, Parking, Visitor Parking
Condo Fee Includes:
Common Area Maintenance, Electricity, Gas, Heat, Insurance, Maintenance Grounds, Professional Management, Reserve Fund Contributions

Lot / Land Info

Lot Size:
1.00 acres
Lot Features:
Landscaped
Water:
Public
Sewer:
Sewer
Utilities:
Electricity Available, Natural Gas Available
Zoning:
rm

Materials & Systems

Roof:
Asphalt Shingle
Exterior:
Vinyl Siding
Floors:
Carpet, Tile
Foundation:
Poured Concrete
Heating:
Baseboard
Cooling:
None
Amenities:
None

Listing Info

Possession:
Immediate
Days on Market:
75
Media & Video

Experience this property!

Virtual Tour
Your Realtor
  • Cord Spero

    RE/MAX Grande Prairie
    780-832-5880

    Email

    Ask a question
    Share This Listing
    Related Properties